-
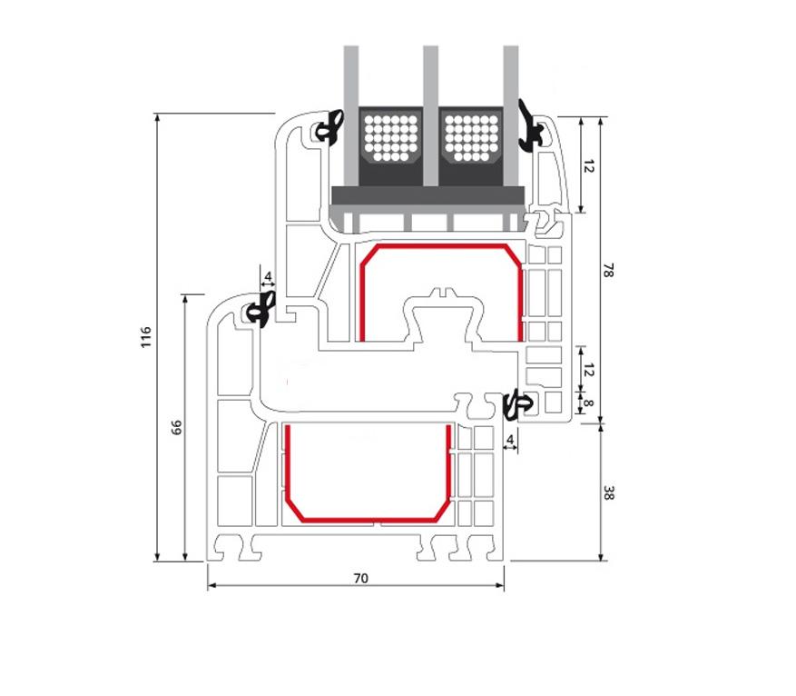
– 1-flügelige Kunststoffbalkontür mit flacher Schwelle Dreh-Kipp Breite und Höhe frei wählbar
– Isolierverglast (2-fach Verglasung) 4/16/4 oder (3-fach Verglasung) 4/16/416/4
– 5 Kammersystem mit einer Bautiefe von 70mm
– MACO Sicherheitsbeschlag
– 2 Anschlagdichtungen
– Innenfarbe Weiß
– Aussenfarbe siehe Artikeltitel
– Schallschutzklasse 2
– Standardmäßig 2x Pilzkopfverrieglung
Lieferungsumfang:
– 1-flügelige Kunststoffbalkontür mit flacher Schwelle Dreh-Kipp Breite und Höhe frei wählbar
– 1x Fenstergriff + Befestigungsschrauben
– 2x Wasserschlitzkappen Fensterfarbe
Nach dem Kauf benötigen wir folgende Angaben
– Liefer- und Rechnungsanschrift
– Telefonnummer




























