Detailzeichnungen und Profilschnitte
von DRUTEX-Fenstern
Planen Sie Ihr Bauvorhaben mit Präzision!
Fenster, die perfekt passen, tragen maßgeblich zur Energieeffizienz, Schalldämmung sowie Wind- und Wasserdichtigkeit Ihres Gebäudes bei. Eine sorgfältige Planung ist die beste Grundlage für den erfolgreichen Einbau. Besonders hilfreich dabei: Detailzeichnungen, Profilschnitte und CAD-Pläne der Fenster- und Türelemente.
Wir stellen Ihnen für alle unsere DRUTEX-Profilsysteme die passenden technischen Unterlagen zur Verfügung – geordnet nach Material und System:
Profilschnitte nach Kunststoff-Systeme
Profilschnitte nach Holz-Systeme
Profilschnitte nach Holz-Aluminium-Systeme
Profilschnitte für Aufsatzrollladen und Vorbaurollladen
Anleitungen
Einbauanleitung Hebeschiebetür Iglo HS (EN)
Einstellanleitung Türbänder Haustür Nebeneingangstür zweiteilig HASP
Einstellanleitung Fensterbeschlag Balkontürbeschlag Maco Multi Matic
Information zur Verwendung des Reedkontakts zur Verschlussüberwachung Maco Tronic
Einstellanleitung verdeckt liegender Fensterbeschlag Balkontürbeschlag Maco Invisible
Montage- und Abnahmeanleitung für Drutex Fenster und Türen
Montage- und Abnahmeanleitung für Drutex Fenster und Türen (EN)
Einstellanleitung Rollladen Funksteuerung Elektromotor
Einstellanleitung Rollladen Motor Simu T5 Auto
Drutex Smart Lock – Smartes Türschloss
Montage – Dreiteiliges WPC AXL Scharnier
Einstellung – Dreiteiliges WPC AXL Scharnier
Anleitung MACO für PSK
Bedienungs- und Wartungsanleitung MACO für PSK
Anleitung Somfy RS100 IO
Montage – Haustürbänder (EN)
Einstellung – Haustürbänder (EN)
Montage MACO Schnäpper für Balkontüren
Erklärung der technischen Eigenschaften
Erklärung der Eigenschaften Iglo 5 und Iglo 5 Classic
Erklärung der Eigenschaften Iglo Light
Erklärung der Eigenschaften Iglo Energy und Iglo Energy Classic
Erklärung der Eigenschaften Iglo HS zweiteilig
Erklärung der Eigenschaften Iglo HS vierteilig
Erklärung der Eigenschaften MB 70, MB 70 HI und MB 86 SI
Erklärung der Eigenschaften MB 70, MB 70 HI und MB 86 SI Außentüren
Erklärung der Eigenschaften Iglo 5 Außentür
Erklärung der Eigenschaften Iglo Energy Außentür
Erklärung der Eigenschaften Softline 68
Erklärung der Eigenschaften Softline 78
Erklärung der Eigenschaften Duoline 78
Nachweis Widerstandsfähigkeit Iglo 5 Fenster mit Unterlicht IFT Rosenheim
Nachweis Widerstandsfähigkeit Iglo 5 Balkontür IFT Rosenheim
Weitere Detailzeichnungen und Querschnitte
Detailzeichnungen und Querschnitte Aufsatz Rollladen PVC
Detailzeichnungen und Querschnitte Aufsatz Rollladen PVC Zubehör
Detailzeichnungen und Querschnitte Beschlag MACO Multi Matic KS
Detailzeichnungen und Querschnitte Holz-Alu Duoline 68 mm
Detailzeichnungen und Querschnitte Holz-Alu Duoline 78 mm
Detailzeichnungen und Querschnitte Holz-Alu Duoline 88 mm
Detailzeichnungen und Querschnitte Iglo 5 und Iglo 5 Classic
Detailzeichnungen und Querschnitte Iglo Energy und Iglo Energy Classic
Detailzeichnungen und Querschnitte Iglo HS
Detailzeichnungen und Querschnitte Iglo Light
Detailzeichnungen und Querschnitte ALU MB-45
Detailzeichnungen und Querschnitte ALU MB-70
Detailzeichnungen und Querschnitte ALU MB-70 HI
Detailzeichnungen und Querschnitte ALU MB-86 SI
Detailzeichnungen und Querschnitte ALU MB-86 Fold Line (Faltanlagen)
Detailzeichnungen und Querschnitte Holz Softline 68 mm
Detailzeichnungen und Querschnitte Holz Softline 78 mm
Detailzeichnungen und Querschnitte Holz Softline 88 mm
Technische Daten Zusammenfassungen
- Technische Daten Iglo 5
- Technische Daten Iglo 5 Classic
- Technische Daten Iglo Energy
- Technische Daten Iglo Energy Classic
- Technische Daten Iglo Light
Ihre Fenster mit allen Details und technischen Zeichnungen
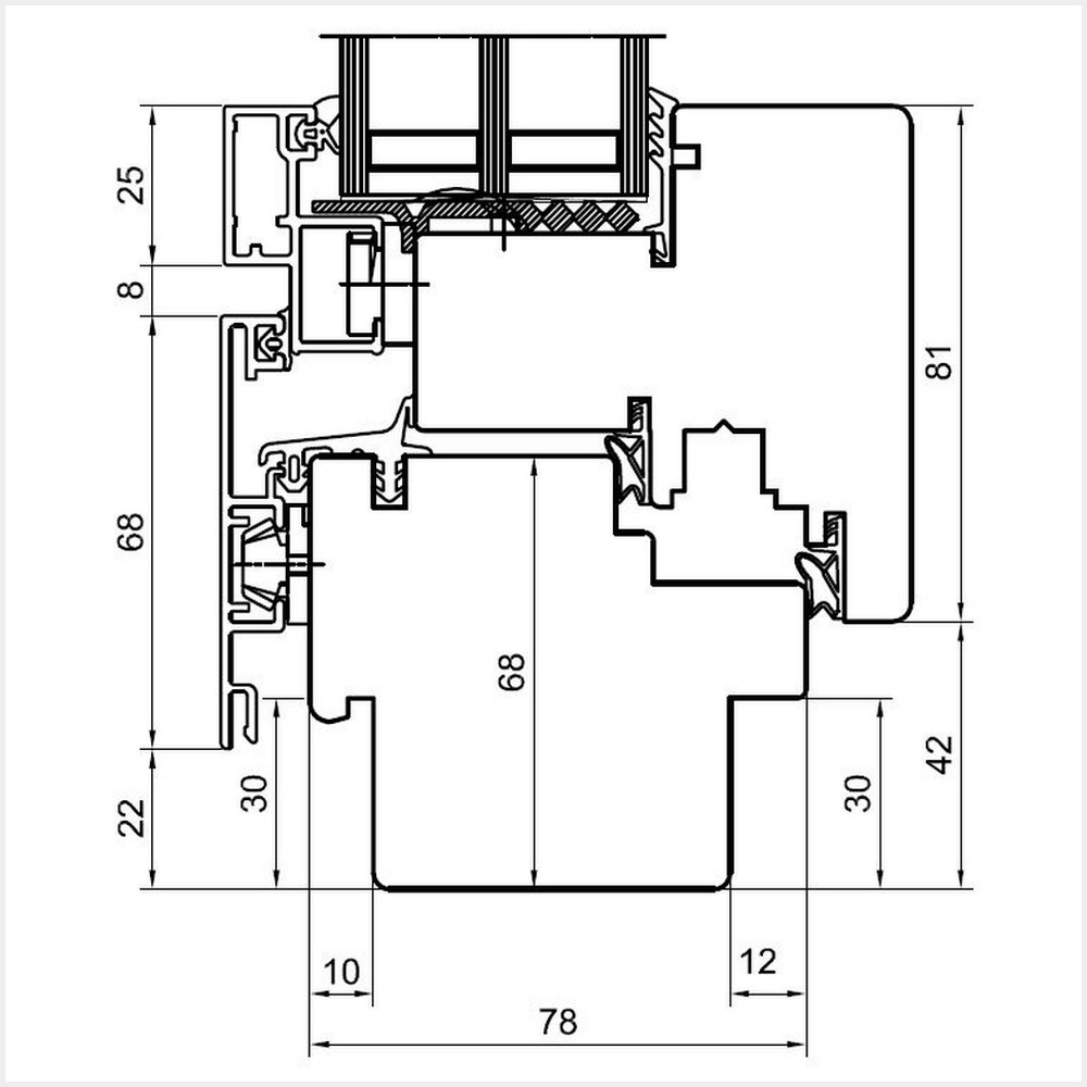
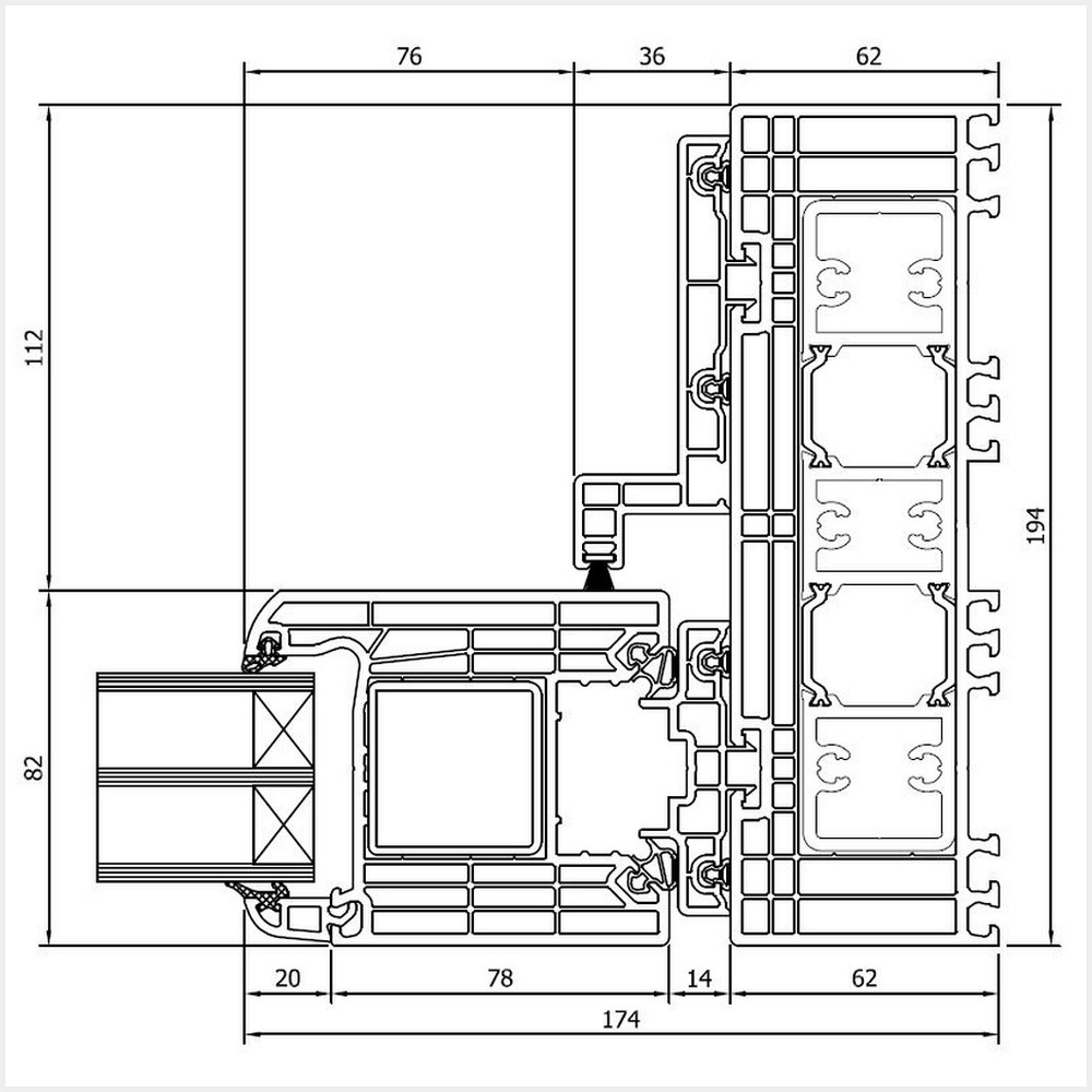
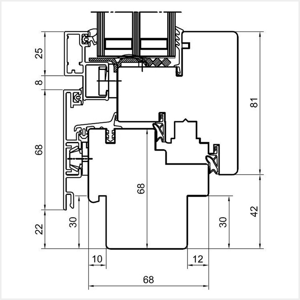
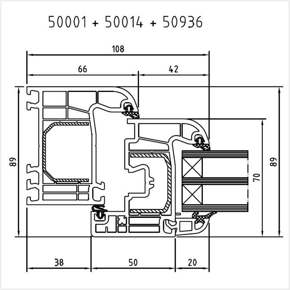
Die Qualitätsunterschiede der verschiedenen Profile sieht man oft nur in den Detailzeichnungen des Fensters. In den Zeichnungen können Sie außerdem nachvollziehen, welche Mechanismen an welcher Stelle wirken. Damit auch wirklich jedes Detail Ihrer Fenster Ihren Vorstellungen entspricht, stehen hier sämtliche Fenster-Zeichnungen, CAD-Pläne und Profil-Querschnitte für alle Fenster-Profilsysteme für Sie zur Verfügung.
In den Detailzeichnungen und Profilschnitten sind die exakten Abmessungen sind für jedes Modell einsehbar. So können Sie die Montage problemlos auf den Millimeter genau planen.
Unter den technischen Zeichnungen finden Sie außerdem Informationen und Maße zu Zusatzsystemen wie Fensterbankanschlussprofile, Kopplungen oder Rahmenverbreiterungen. Auch Rollläden haben wir für Sie ins kleinste Detail beschrieben, damit Sie alles passend einstellen können. Ob Holz, Kunststoff oder Aluminium:Für jedes Material steht eine PDF-Datei zum Download zur Verfügung. Für Rückfragen und weitere Details stehen wir Ihnen gerne telefonisch oder per E-Mail zur Verfügung.Gehen Sie mit Planungssicherheit an Ihr Bauprojekt und führen Sie es zum Erfolg!
Sorgfältig geplant und gut beraten zum Ziel
Spontanes Umplanen oder schnelles Improvisieren sind bei der Durchführung eines Bauprojektes an der Tagesordnung. Denn überall kann etwas schief gehen oder äußere Einflüsse erfordern eine Neuplanung. Überlassen Sie bei den Fenstern besser nichts dem Zufall, denn sie tragen maßgeblich zu einem angenehmen Raumklima und letztlich zum Wohlbefinden in Ihrem eigenen Heim bei.
Wir lassen Ihre Fenster ganz nach Ihren Wünschen produzieren. Sie sind individuell auf Ihre Bedürfnisse abgestimmt. Wie ärgerlich wäre es, wenn die Planung für Ihre Fenster bei der Anlieferung endet und beim Einbau etwas nicht passt? Nachträgliche Änderungen sind meist schwierig oder sogar unmöglich und eine neue Bestellung wird nötig. Mit den Profilschnitten und Detailzeichnungen der Fenster können Sie einem solchen Malheur schon in der Planungsphase vorbeugen.
Wir stellen Ihnen genaue Detailzeichnungen aller Profile zur Verfügung, damit Sie die Fenster und ihre Zusatzsysteme lückenlos und bis ins Detail planen können. In unserem Online-Konfigurator können Sie dann bei der Bestellung Ihrer Fenster alle Maße und Ausstattungen passgenau nach Ihren Anforderungen einstellen. Sie sind sich nicht sicher, welche Maße Sie benötigen? Der Erfolg Ihres Bauprojektes ist uns wichtig. Deshalb stehen wir Ihnen bei Fragen und Problemen zum Thema Fenster, ihre Passformen und den Einbau gern zur Verfügung. Kontaktieren Sie uns, damit wir Ihre Fragen klären können.