- 2-flügelige Kunststoffbalkontür Dreh-Kipp links oder rechts als Pfostenvariante
- Breite und Höhe frei wählbar
- Isolierverglast (2-fach Verglasung) 4/16/4 oder (3-fach Verglasung) 4/16/416/4
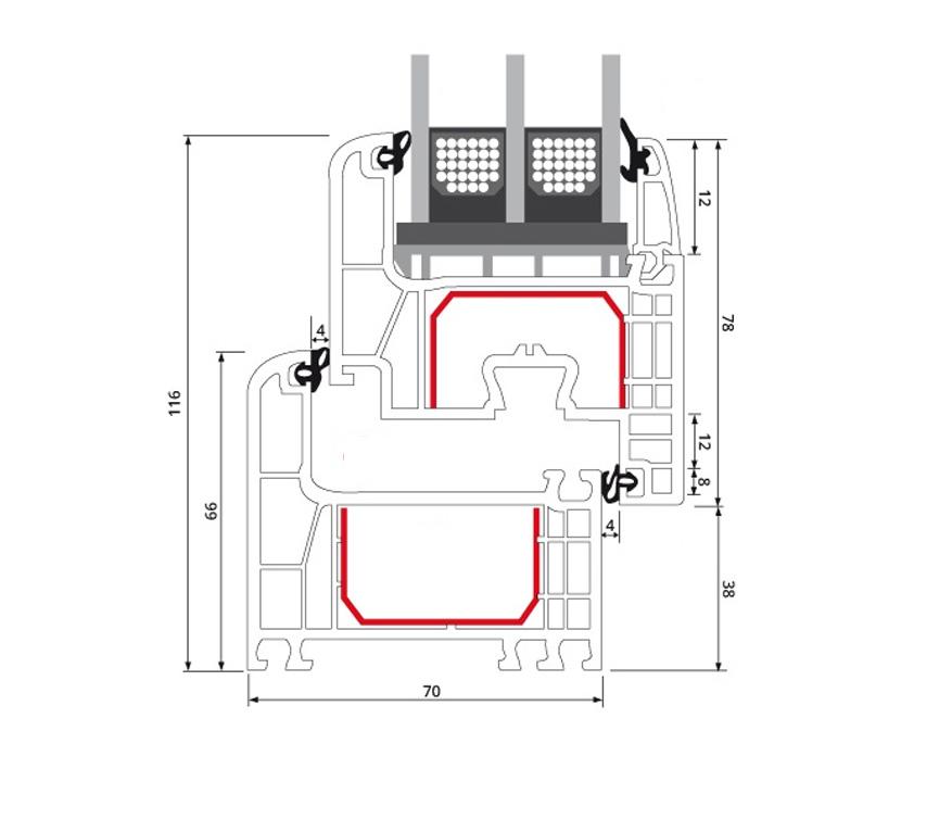
- 5 Kammersystem mit einer Bautiefe von 70mm
- MACO Sicherheitsbeschlag
- 2 Anschlagdichtungen
- Innenfarbe siehe Artikeltitel
- Aussenfarbe siehe Artikeltitel
- Schallschutzklasse 2
- Standardmäßig 2x Pilzkopfverrieglung pro Fensterseite
-
Lieferungsumfang:
- 2-flügelige Kunststoffbalkontür Dreh-Kipp links oder rechts als Pfostenvariante
- 2x Fenstergriff + Befestigungsschrauben
- 1x Fensterbankanschlussprofil 30mm
- 4x Wasserschlitzkappen Fensterfarbe
-
Nach dem Kauf benötigen wir folgende Angaben
- Liefer- und Rechnungsanschrift
- Telefonnummer
KONFIGURATOREN
-40%
-40%
-40%
-40%
-40%






















