- 2-flügeliges Dreh/Kipp + Dreh oder Dreh + Dreh/Kipp Fenster mit Stulp Breite und Höhe frei wählbar
- Isolierverglast (2-fach Verglasung) 4/16/4 oder (3-fach Verglasung) 4/16/416/4
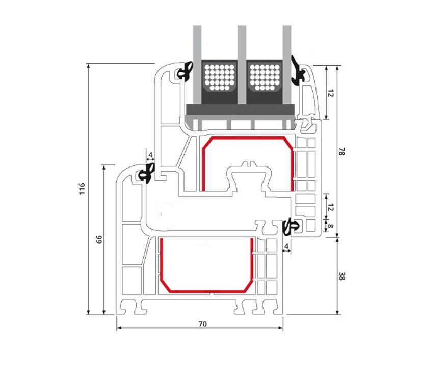
- 5 Kammersystem mit einer Bautiefe von 70mm
- MACO Sicherheitsbeschlag
- 2 Anschlagdichtungen
- Fenster mit Stulp (Dreh/Kipp + Dreh oder Dreh + Dreh/Kipp)
- Aussenfarbe siehe Artikeltitel
- Innenfarbe siehe Artikeltitel
- Standardmäßig 2x Pilzkopfverrieglung pro Fensterseite
Lieferungsumfang:
- 2-flügliges Stulpfenster in den von Ihnen gewünschten Maßen
- 1x Fensterbankanschlussprofil 30mm
- 1x Fenstergriff passend zum Fenster (siehe Artikelbild) + Befestigungsschrauben
- Wasserschlitzkappen passend zur Fensterfarbe


























