Details und Zeichnungen
Holz-Alufenster Duoline 78

Holz-Alu Fensterprofil Duoline 78 Querschnitte

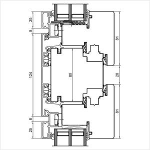
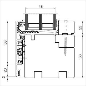
Fenstermaxx24 – Duoline 78 Fenster Fluegel und Rahmen mit Standardfalz

Duoline 78 Fenster Flügel und Rahmen mit Standardfalz

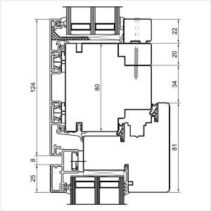
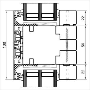
Fenstermaxx24 – Duoline 78 Fenster mit Falz fuer Federprofil

Duoline 78 Fenster mit Falz für Federprofil

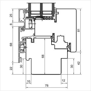
Fenstermaxx24 – Duoline 78 Festverglasung mit Falz fuer Federprofil

Duoline 78 Festverglasung mit Falz für Federprofil

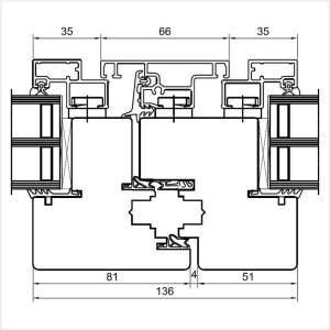
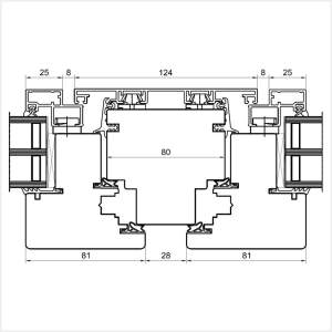
Fenstermaxx24 – Duoline 78 Pfosten mit Fluegel

Duoline 78 Pfosten mit Flügel

Fenstermaxx24 – Duoline 78 Fenster mit Stulp

Duoline 78 Fenster mit Stulp

Fenstermaxx24 – Duoline 78 Fenster mit Oberlicht Dreh Kipp

Duoline 78 Fenster mit Oberlicht Dreh-Kipp

Fenstermaxx24 – Duoline 78 Fenster mit Oberlicht Fest

Duoline 78 Fenster mit Oberlicht Fest

Holz-Alufenster Duoline 78 Sprossenarten

Innenliegende SZR Sprossen / Helima Sprossen

Fenstermaxx24 – Download 52

Innenliegende Sprosse 8 mm

Fenstermaxx24 – Download 53

Innenliegende Sprosse 18 mm

Fenstermaxx24 – Download 54

Innenliegende Sprosse 26 mm

Fenstermaxx24 – Download 55

Innenliegende Sprosse 45 mm

Glasteilende Sprossen – Kämpfer

Fenstermaxx24 – Duoline 78 Glasteilende Sprosse Kaempfer

Duoline 78 Glasteilende Sprosse-Kämpfer

Fenstermaxx24 – Duoline 78 Festverglasung Kaempfer Sprosse

Duoline 68 Festverglasung Kämpfer-Sprosse