Kunstofffenster DREH-KIPP mit 4 SICHERHEITSPILZZAPFEN und ABSCHLIEßBAREN Fenstergriff
Klassisches Kunststofffenster mit hochwertigen MACO MULTI MATIC KS Beschlägen. Bestens geeignet für den Einsatz im Außenbereich durch hervorragende Eigenschaften in Bezug auf Wärmedämmung, Schalldämmung und Sicherheit.
– 4x Pilzkopfverriegelung
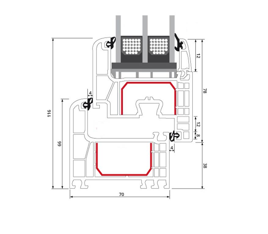
– 5-Kammer System
– 70mm Bautiefe
– Ug= 1,1 W/m²K
– Schalldämmung bis 32dB
– 2-fach oder 3-fach Verglasung
Das Fenstersystem bietet Ihnen ein 5 Kammer Profil mit 2 Anschlagsdichtungen sowie einer Bautiefe von 70mm. Die hervorragenden Wärmedämmeigenschaften sorgen so für ein angenehmes Klima bei Ihnen Zuhause und senken die Energiekosten.
– MACO MULTI MATIC KS Beschläge
– Schlankes Profil für mehr Lichteinfall
– Stahlverstärkung in U-Form
– Dichtungsfarbe: schwarz
– Rahmenfarbe außen: siehe Artikelname
– Rahmenfarbe innen: weiß
– Dreh- & Kippfunktion
– abschließbarer Fenstergriff mit einem Schlüssel

























