- 3-flügeliges Dreh/Kipp + Fest + Dreh/Kipp Fenster
- Breite und Höhe frei wählbar
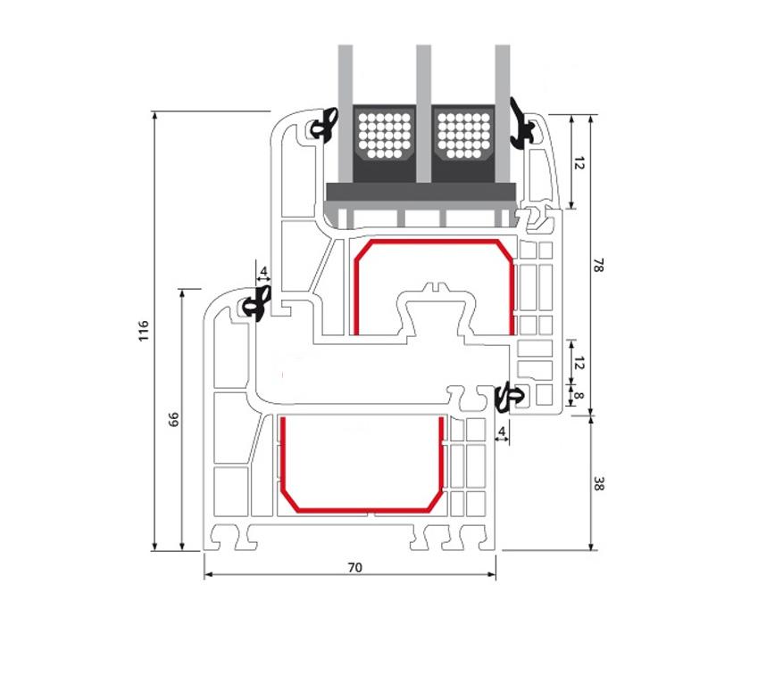
- Isolierverglast (2-fach Verglasung) 4/16/4 oder (3-fach Verglasung) 4/16/416/4
- 5 Kammersystem mit einer Bautiefe von 70mm
- MACO Sicherheitsbeschlag
- 2 Anschlagdichtungen
- Aussenfarbe siehe Artikeltitel
- Standardmäßig 2x Pilzkopfverrieglung pro Fensterflügel
- Ornamentglas Streifen
Lieferungsumfang:
- 3-flügeliges Dreh/Kipp + Fest + Dreh/Kipp Fenster
- 1x Fensterbankanschlussprofil 30mm
- 2x weißer Fenstergriff + Befestigungsschrauben
- 6x Wasserschlitzkappen Fensterfarbe








































