Das Fenstersystem IGLO ENERGY ist eine Eigenentwicklung von DRUTEX und gewährleistet mit seinem innovativen Dichtungssystem hervorragende Parameter in Sachen Energieeffizienz. Es ist die weltweit erste Lösung in solch einem System mit einer Zentraldichtung aus geschäumtem EPDM. Dank der innovativen Dichtung werden überdurchschnittliche Werte im Bereich Luftdurchlässigkeit, Schlagregendichtheit und Widerstandsfähigkeit gegen Windlasten erreicht. Damit stellt das System eine perfekte Lösung für energiesparende Häuser und Häuser in Passivbauweise dar.
– Pilzkopfverriegelung
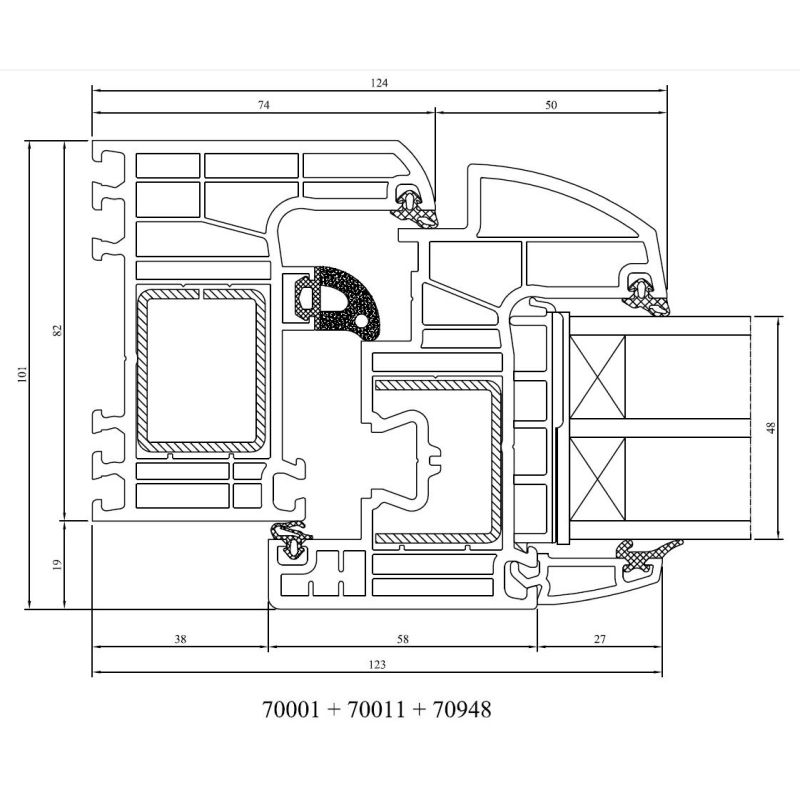
– 7-Kammer System Klasse A
– 82mm Bautiefe
– Uw= 0,79 W/m²K
– Schalldämmung 37dB
– 3-fach Verglasung (4/18/4/18/4 – Ug= 0,5W/(m²K)
Das Fenstersystem bietet Ihnen ein 7 Kammer Profil mit 3 Anschlagsdichtungen sowie einer Bautiefe von 82mm. Die hervorragenden Wärmedämmeigenschaften sorgen so für ein angenehmes Klima bei Ihnen Zuhause und senken die Energiekosten.
· MACO MULTI MATIC KS Beschläge
· Stahlverstärkung in U-Form
· Dichtungsfarbe: schwarz
· Rahmenfarbe aussen: weiss
· Rahmenfarbe innen: weiss
· Dreh- & Kippfunktion
Farben gegen Aufpreis möglich!


weiss FX strukturiert (915205-168)
anthrazitgrau (1701605)
schokobraun (887505)
eiche dunkel (2052089)
macore (3162002)
mahagoni (2097013)
nussbaum (2178007)
winchester XA (49240-015)
golden oak (2178001)
basaltgrau (701205)
brillantblau (1500705)
dunkelrot (308105)
dunkelgrün (612505)
streifen douglasie (3152009)
eiche natur (3118076)
eiche hell (2052090)
smaragdgrün (611005)
cremeweiss (1137905)
quarzgrau (703905)
oregon (2115008)
schwarzbraun (851805)
shogun AF (49198)
stahlblau (1515005)
grau (715505)
braun maron (809905)
moosgrün (1600505)
anthrazitgrau glatt (701605-083)
basaltgrau glatt (701205-083)
quarzgrau glatt (703905-083)
aluminium gebürstet (1298702-195)
betongrau (702305)
Sheffield Oak Light (F456-3081)
Light Black (ASH C-35N)
Bergkiefer (9.3069041-167)
Cardinal Platinum (9.1293011-195)
Crown Platinum (9.1293001-195)
Eisenglimmer Schiefer (DB703 1.0065002)
Pyrite (02.12.17.000001-195)
Schiefergrau glatt (7015 02.11.71.000040-097)
Schwarzgrau glatt (7021 9.1293011-195)
Silber D (02.12.76.000013-083)
Silber V (02.12.76.000014-195)
Lichtgrau (7251 725105-167)
























