- Sprossenfenster Typ 3 Felder T-Sprosse 8mm SZR Sprosse
- 2-flügeliges Dreh/Kipp-Dreh/Kipp Fenster mit Stulp Breite und Höhe frei wählbar
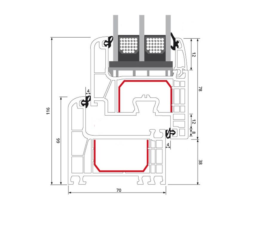
- Isolierverglast (2-fach Verglasung) 4/16/4 oder (3-fach Verglasung) 4/16/416/4
- 5 Kammersystem mit einer Bautiefe von 70mm
- Fenster mit Stulp in der Mitte (Dreh/Kipp + Dreh/Kipp)
- Aussenfarbe siehe Artikeltitel
- Standardmäßig 2x Pilzkopfverrieglung pro Fensterseite
Lieferungsumfang:
2-flügliges Dreh-Kipp Fenster mit Stulp in den von Ihnen gewünschten Maßen 1x Fensterbankanschlussprofil 30mm 2x weiße Fenstergriffe + Befestigungsschrauben 4x Wasserschlitzkappen Fensterfarbe








































