- 2-flügeliges Dreh/Kipp-Dreh/Kipp Fenster mit Pfosten Breite und Höhe frei wählbar
- Isolierverglast (2-fach Verglasung) 4/16/4 oder (3-fach Verglasung) 4/16/416/4
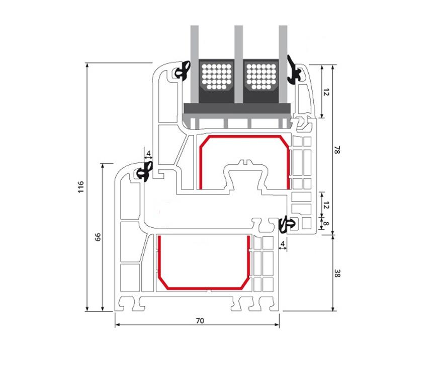
- 5 Kammersystem mit einer Bautiefe von 70mm
- Fenster mit Pfosten in der Mitte (Dreh/Kipp + Dreh/Kipp)
- Aussenfarbe siehe Artikeltitel
- Standardmäßig 2x Pilzkopfverrieglung pro Fensterseite
Lieferungsumfang:
- 2-flügliges Dreh-Kipp Fenster mit Pfosten in den von Ihnen gewünschten Maßen
- 1x Fensterbankanschlussprofil 30mm
- 2x weiße Fenstergriffe + Befestigungsschrauben
- 4x Wasserschlitzkappen Fensterfarbe
























