- 1-flügeliges Kunststofffenster mit Lüftung Dreh-Kipp Breite und Höhe frei wählbar
- Isolierverglast (2-fach Verglasung) 4/16/4 oder (3-fach Verglasung) 4/16/416/4
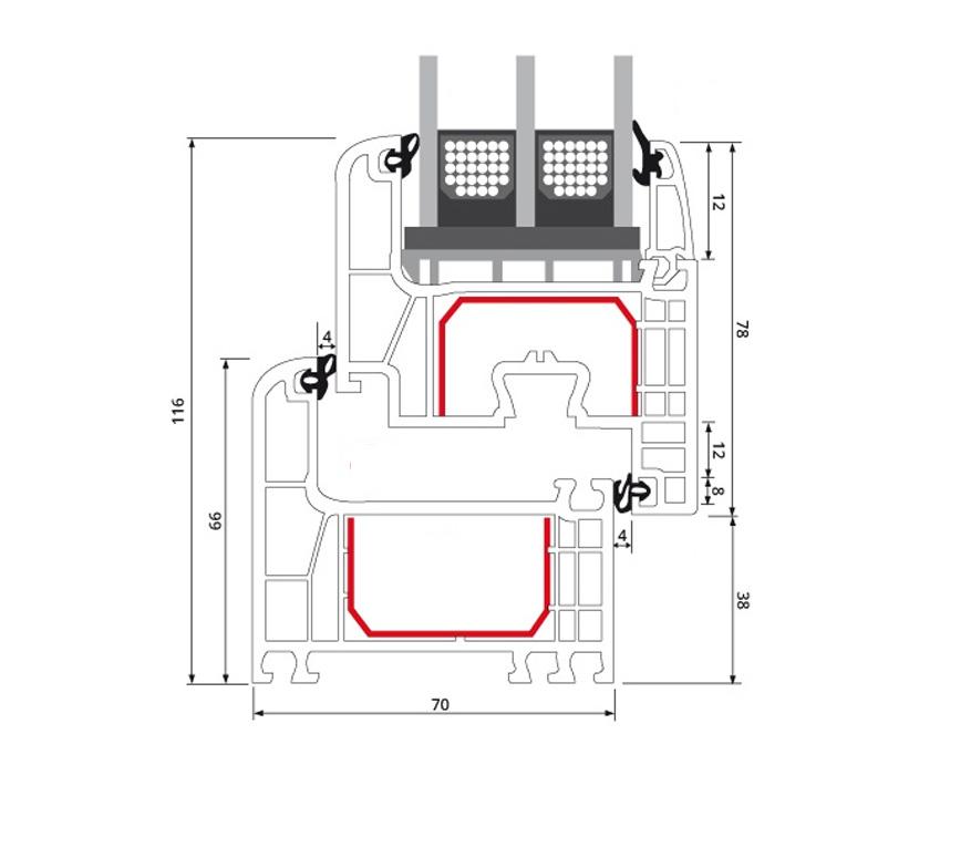
- 5 Kammersystem mit einer Bautiefe von 70mm
- MACO Sicherheitsbeschlag
- 2 Anschlagdichtungen
- Innenfarbe Weiß
- Aussenfarbe siehe Artikeltitel
- Schallschutzklasse 2
- Ornamentverglasung siehe Artikeltitel
- Standardmäßig 2x Pilzkopfverrieglung
Lieferungsumfang:
- 1-flügeliges Kunststofffenster Dreh-Kipp Breite und Höhe frei wählbar
- 1x weißer Fenstergriff + Befestigungsschrauben
- 1x Fensterbankanschlussprofil 30mm
- 2x Wasserschlitzkappen Fensterfarbe
Nach dem Kauf benötigen wir folgende Angaben
- Liefer- und Rechnungsanschrift
- Telefonnummer
















































